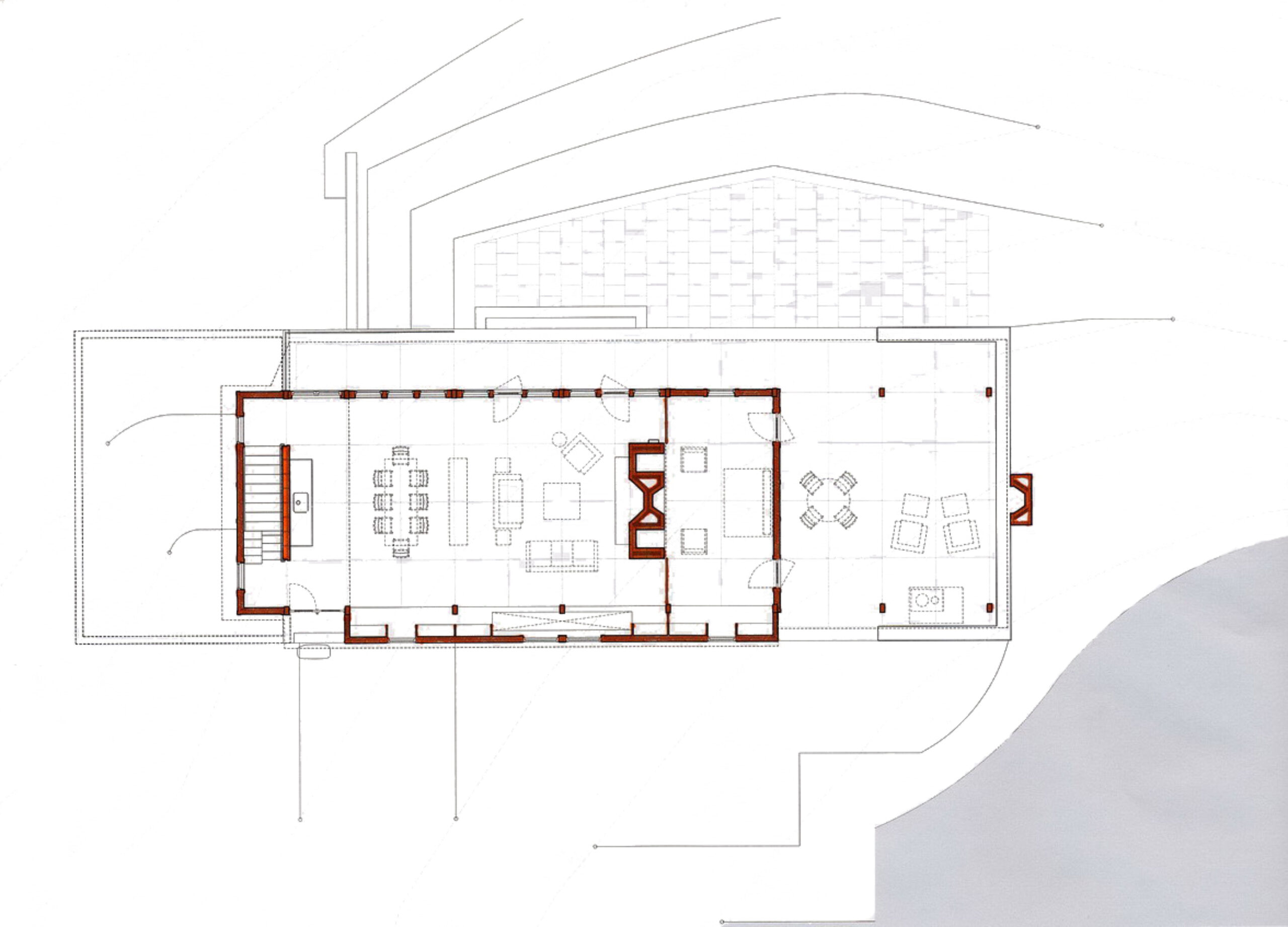
Castanea

View gallery

Unbuilt single-family retreat home.