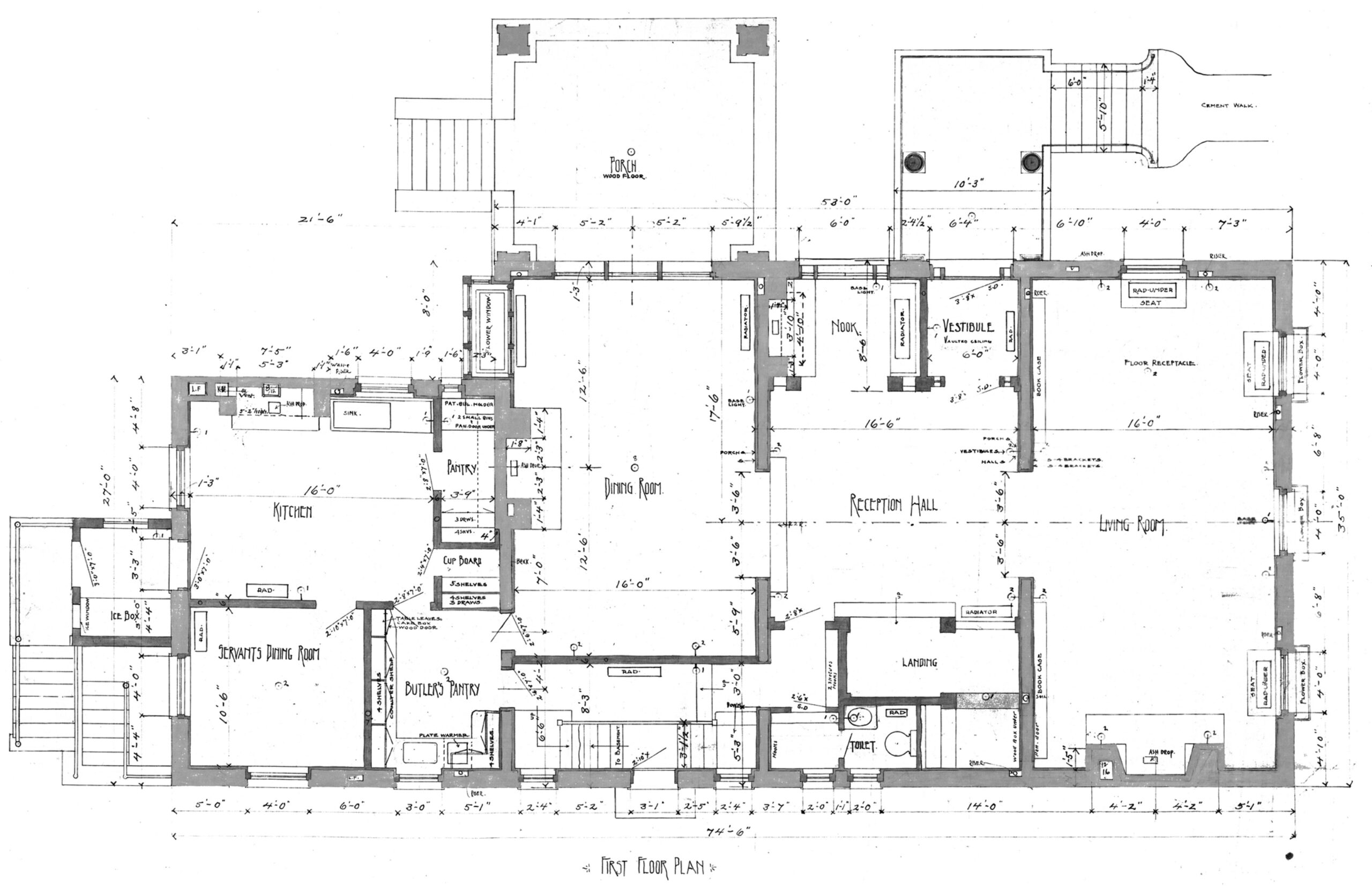
This restoration and adaptation of a 1902 Hyde Park residence by architect Hugh Garden with Richard Schmidt for a family of five was originally known as the Frankenthal House.
Though the exterior form and details throughout are of the Georgian Revival style, Garden’s Prairie School influence is apparent in the interior planning of the first floor with its open and continuous public spaces that maximize daylight, views and connection to the exterior porches and gardens.




Additional Images
Interior Design: Soucie Horner, Ltd
Landscape Architect: Peter Lindsay Schaudt Landscape Architects
General Contractor: J&M Construction, South Chicago Workforce
Photography: Evan Thomas – Studio Thomas


















