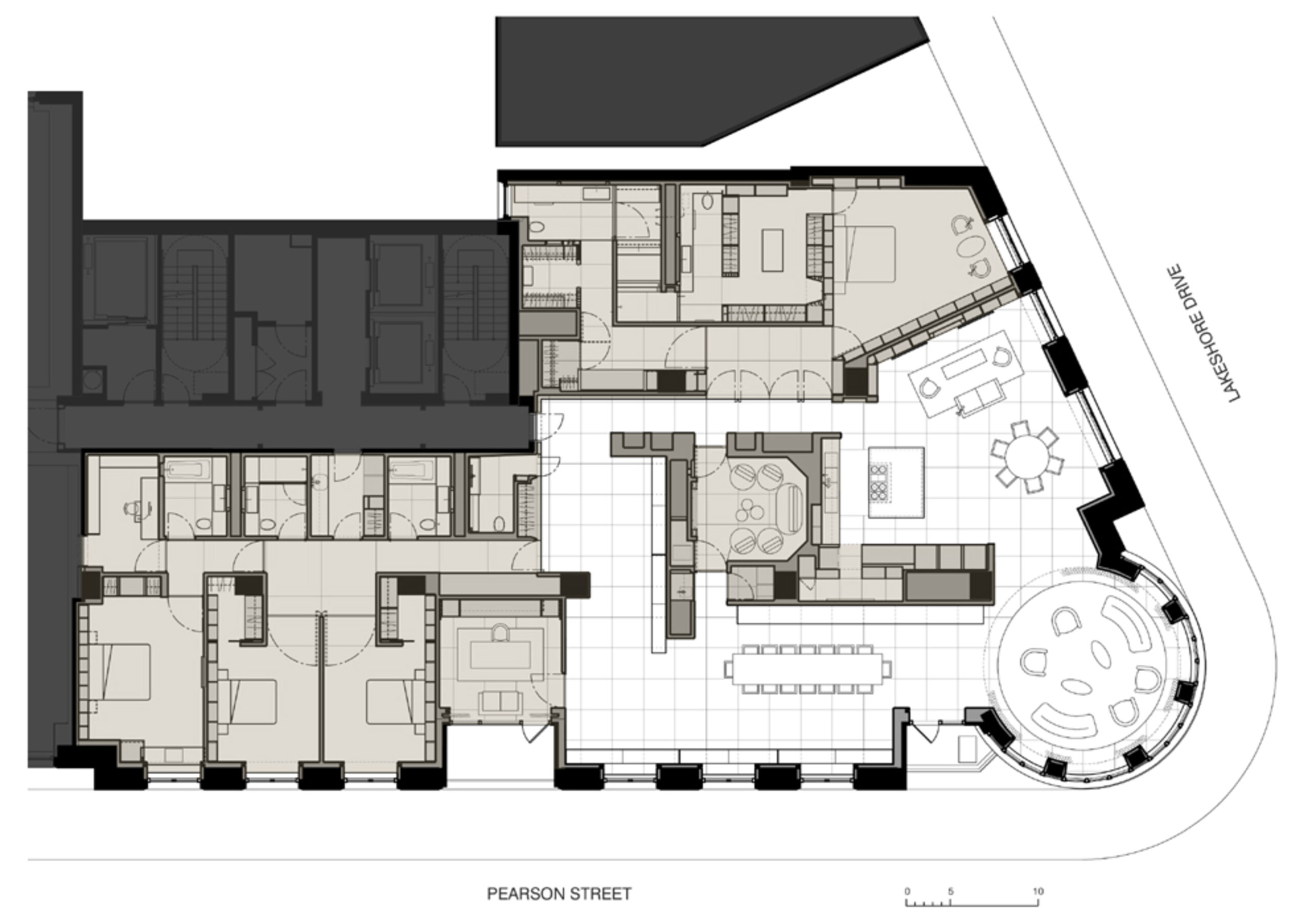
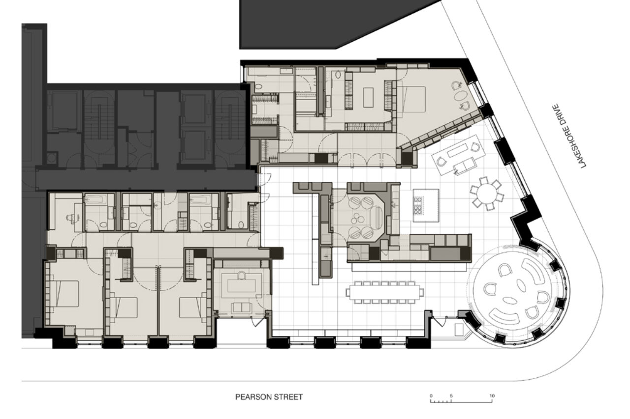
Starting with an exposed concrete space in a Chicago high-rise and maneuvering around vertical chase-ways and relatively modest ceiling heights, our challenge was to create a free flowing and spatially diverse residence using tactile materials that would enhance the experience of the city and lake views and accommodate an ever changing art collection.

The main public spaces flow between the southern exterior window wall with abundant natural light and an interior back lit wall that opens to a multitude of functions behind. A central media room is carved out of a dense plaster internal volume and becomes a contemplative space that anchors the surrounding free spaces. Natural wood cabinets are used throughout to as to define space.




Additional Images
Interior Design: Insight
General Contractor: Blackmore Construction
Photography: Paul Warchol
















