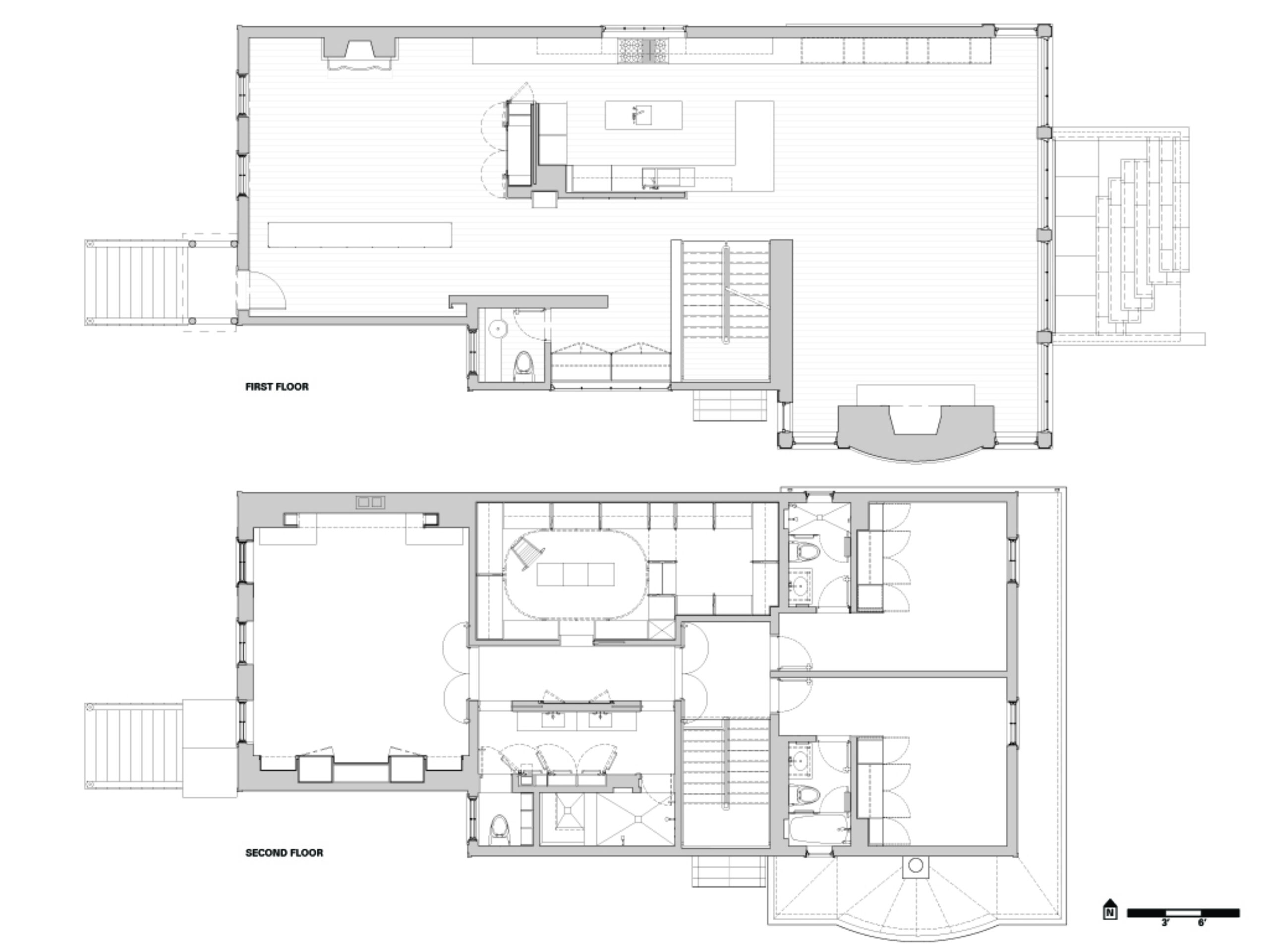
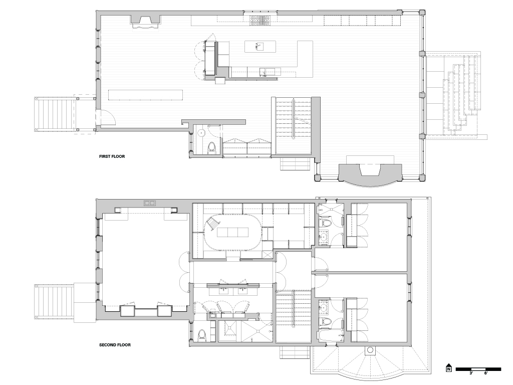
This historic Victorian residence from the 1880’s in a Landmark District in Lincoln Park was entirely reconstructed to meet the changing needs of the owners of over twenty years.
The exterior of the house was restored within the State of Illinois guidelines and oversight in compliance with their Tax-Freeze program, and won a 2007 City of Chicago Landmark Award for Preservation Excellence. The exterior work included research and the faithful replacement of windows, doors and trim, all but two had been lost during prior renovations.

The interior of the house was completely gutted and rebuilt, with the intention to provide a serene and sophisticated backdrop for the client’s collection of American Indian arts and artifacts. The design solution proposed an open plan maximizing daylight, with expressed horizontals reflected in many of the pieces.

General Contractor: Tip Top Construction
Interior Design: Suzanne Lovell Inc.
Lighting: Charter Sills
Structrual Engineer: Enspect Inc.
Photography: Tony Soluri









