WKA was commissioned to provide an updated Masterplan for the beloved Ramsdell Regional Center for the Arts (RRCA)—a theatre originally constructed in 1903 and listed in the National Register of Historic Places in 1972. Since its inception, RRCA has been a well-stewarded community asset that has had continuous investment, but particularly in recent large capital expenses addressing mechanical systems and roofing and efforts made to restructure the organizational operation.
The goal of this Master Plan was to provide a framework for completing ongoing planning and renovation work, addressing critical operations issues, and continuing preservation efforts to ensure future success for years to come. The plan seeks to address both the rudimentary issues and strategic improvements, informed through community engagement and extensive building analysis to envision the RRCA’s next century of vibrancy.

The master planning process included community engagement sessions, presentations, workshops, and in-depth building analysis, addressing both short-term issues and the long-term strategic goals. WKA conducted workshops with all four of the different user groups (Theatre Patrons, Visual Arts Education + Exhibition, Ballroom Guests, Staff), involving the community to solicit feedback and deeply understand their needs.

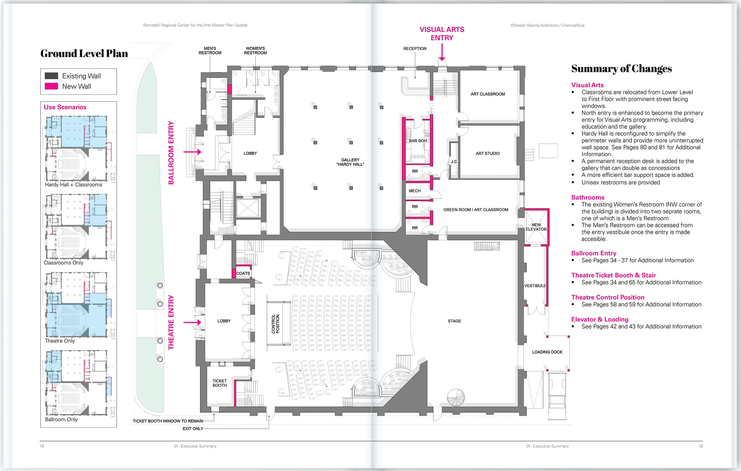
Serving many uses within the community, the RRCA boasts three separate large venues—the theatre, the ballroom, and the gallery—but currently faces challenges in simultaneous use, necessitating negotiation and compromises among groups. Key issues hindering simultaneous use include access, amenities, and acoustics. The reimagined RRCA allows for the separation of these user groups, providing discrete points of entrance and separate amenities to eliminate bottlenecks and enhance building utilization.
By honoring its historic legacy and incorporating community input, the Master Plan aims to ensure that RRCA thrives as a vibrant, multi-use cultural hub, strengthening its role as a cherished community asset poised to inspire and serve future generations.
Additional Images
Theatre Consultant: Charcoalblue















