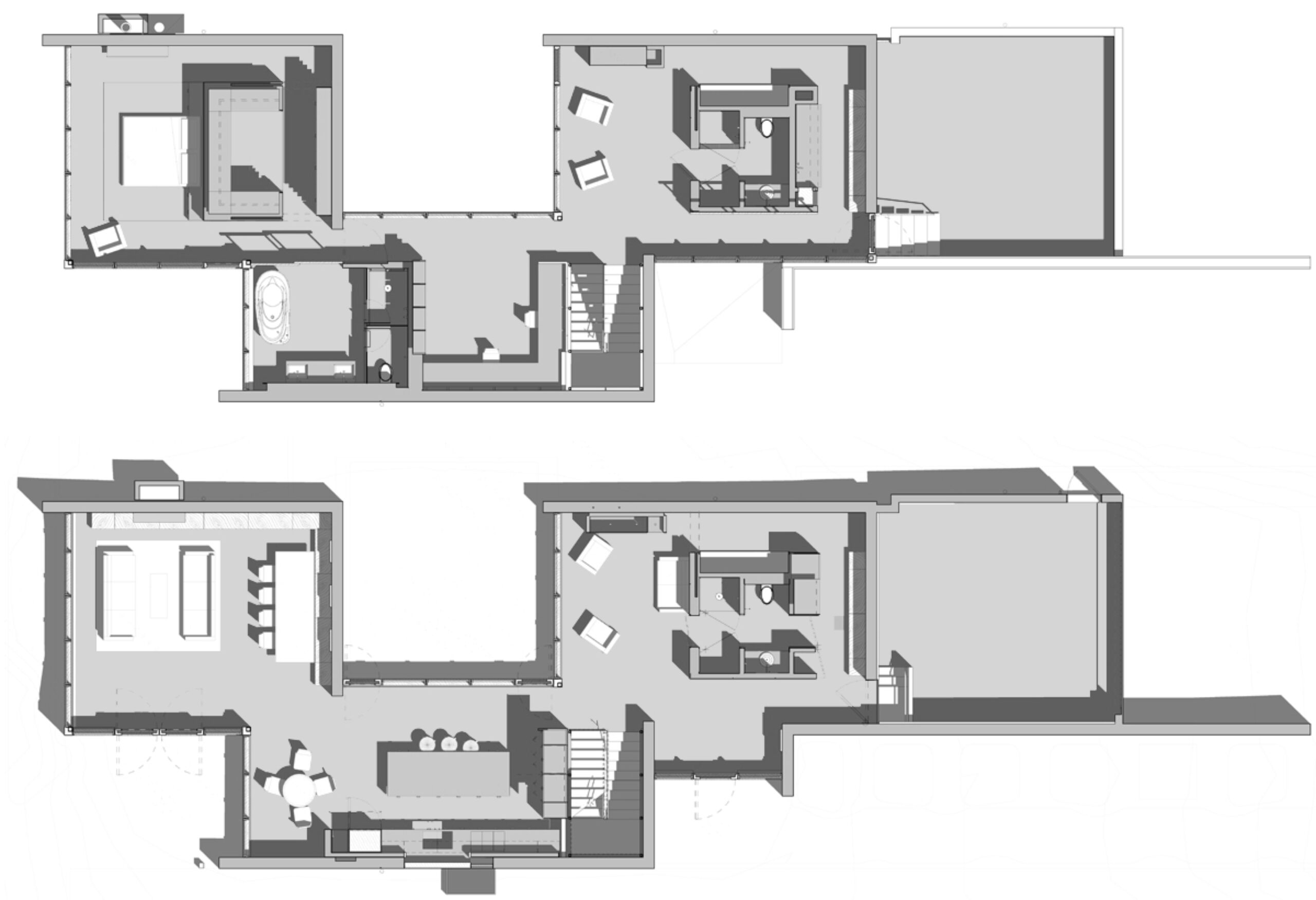
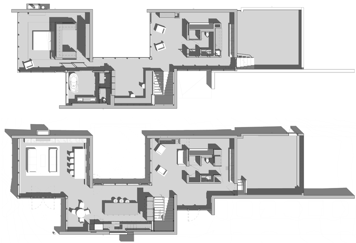
Set within a hilly dune landscape along Lake Michigan, the project occupies a narrow lot that gains generous lake views thanks to a public beach access path bordering its northern edge.


The walls function as insulated radiant masses that maintain even temperature and humidity throughout the house and minimize diurnal swings. A geothermal well field and heat pumps were employed to heat and cool the air and radiant systems delivered to the house. Native plantings and permeable landscape pavers and material prevent storm water run-off and erosion allowing the entire site to freely drain.
Additional Images
General Contractor: Pivotal Custom, Inc.
Photography: Steve Hall – Hedrich Blessing



























