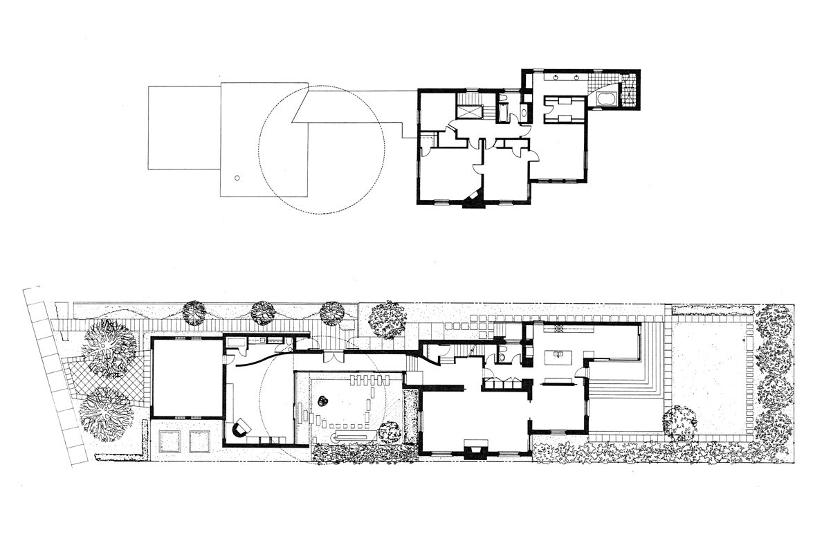
A 1970s addition concealed the front of a small 1920’s brick house situated in the historic Hutchinson district of Chicago. The rehabilitation strategy focused on opening the inner opaque walls of the 1970’s addition, which encircled a magnificent oak tree. The newly fashioned courtyard greets occupants upon entry and distributes light to the surrounding spaces. A new addition was added to the rear to accommodate a larger kitchen and a primary bedroom suite above.

General Contractor: G.Wood Construction
Photography: William Kildow





