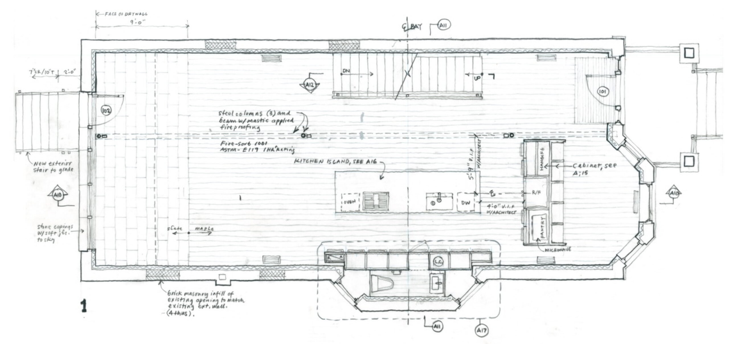
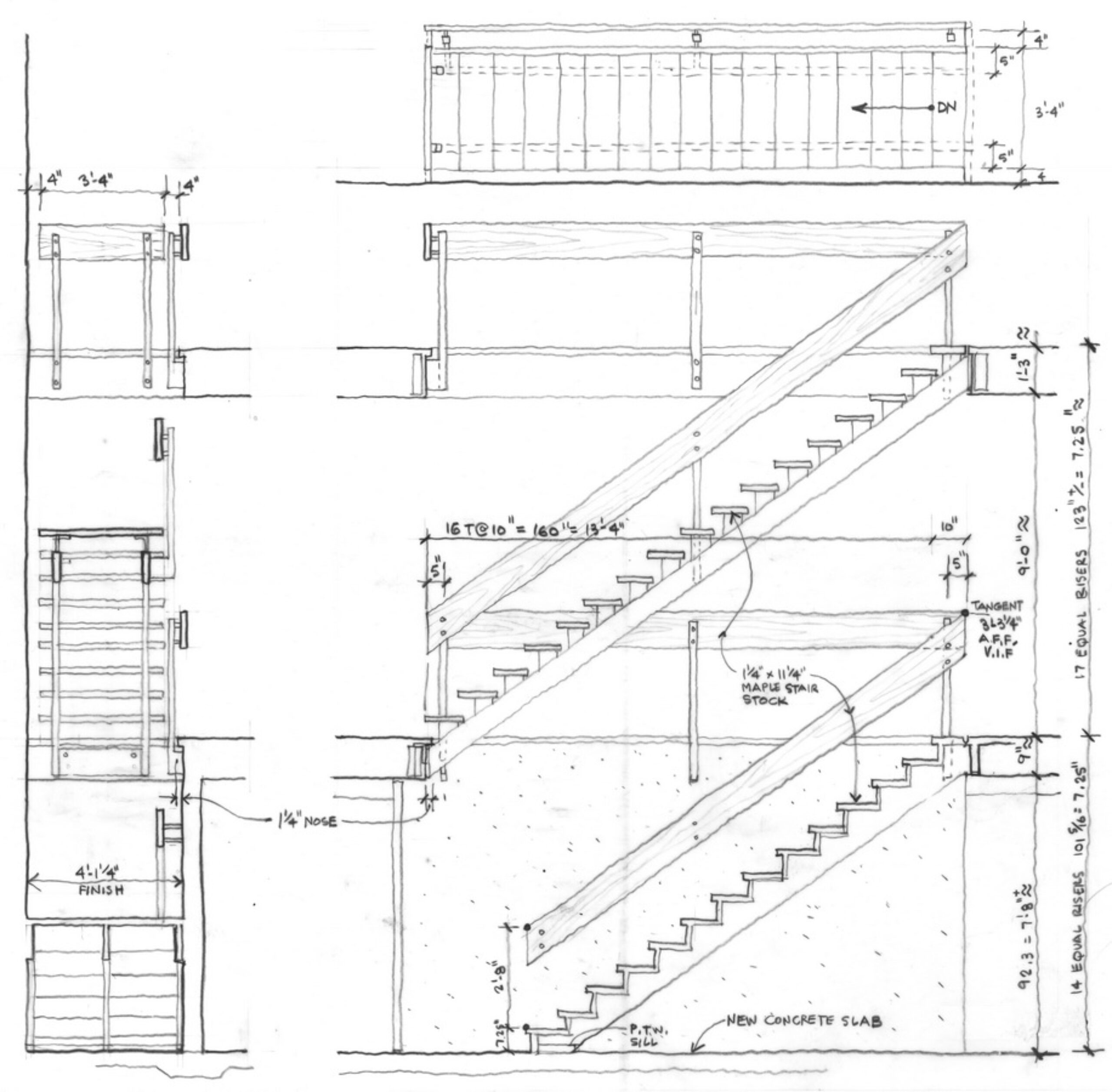
Two classical guitarists owned a rental two-flat in the city and wanted to make it one; for themselves. Their budget was modest, their expectations relatively high.

Additional Images
General Contractor: Benchdog Construction
Photography: Michelle Litvin




























