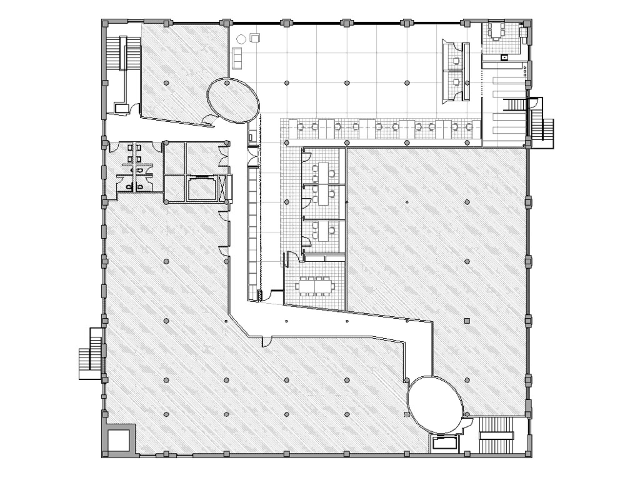
This 4700 sf office for a prominent local men’s clothing store, Bachrach, is located in a concrete loft building in Chicago’s Gold Coast neighborhood. The space includes open office area, staging and exhibit space, conference rooms and private offices.


From the entry that is located deep within the center of the building, a long view out towards the city greets staff and visitors. Glass front private offices are located in the core sharing in daylight, while the open office and generous staging and display area are located directly off of the exterior wall with its floor to ceiling arch top windows.
General Contractor: H&R Johnson Brothers
Photography: Doug Snower


