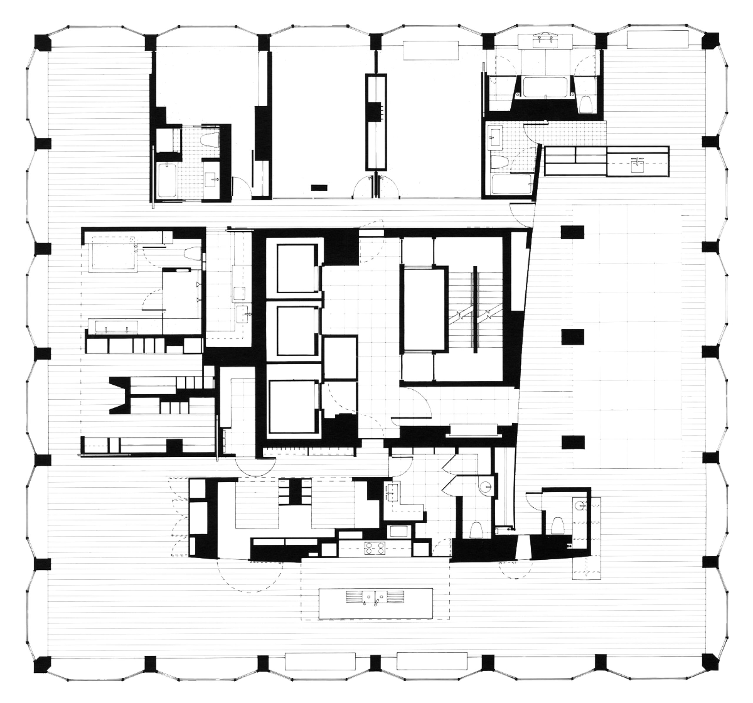
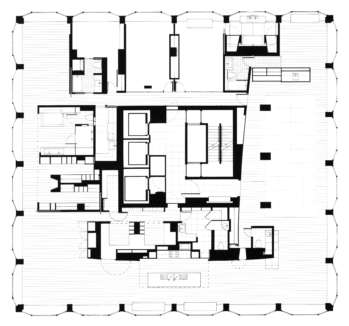
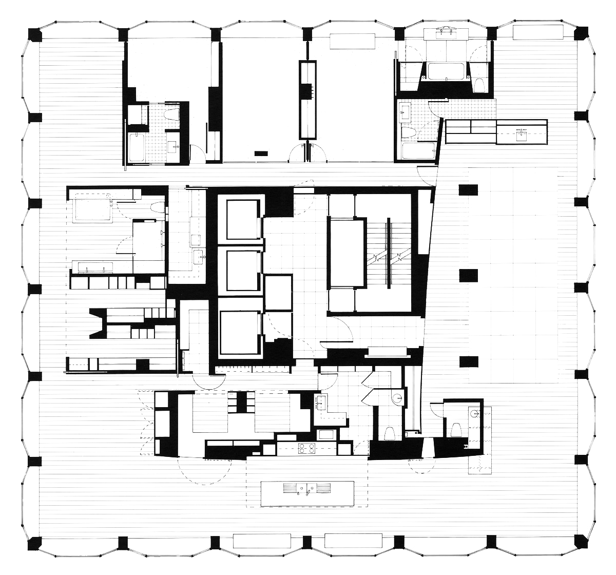
This apartment in a high-rise overlooking Lincoln Park, previously three cellular apartments, was renovated into a single apartment. Building constraints included a limited 7ft 10in ceiling height, and a large central core.

Entry is signified by a large cast glass door that brings light into a constricted receiving hall, carved from the building core. The two primary perimeter living spaces wrap around the core, shaped by large-scale curved elements mediating between public and service space. Where private bedrooms preclude circulation at the perimeter, a glazed interior corridor is developed to borrow light from the perimeter window walls and maintain the relationship of core and daylight.

Additional Images
Interior Design: Leslie Jones & Associates
General Contractor: H.O. Schulz Co.
Photography: Doug Snower












