Michigan
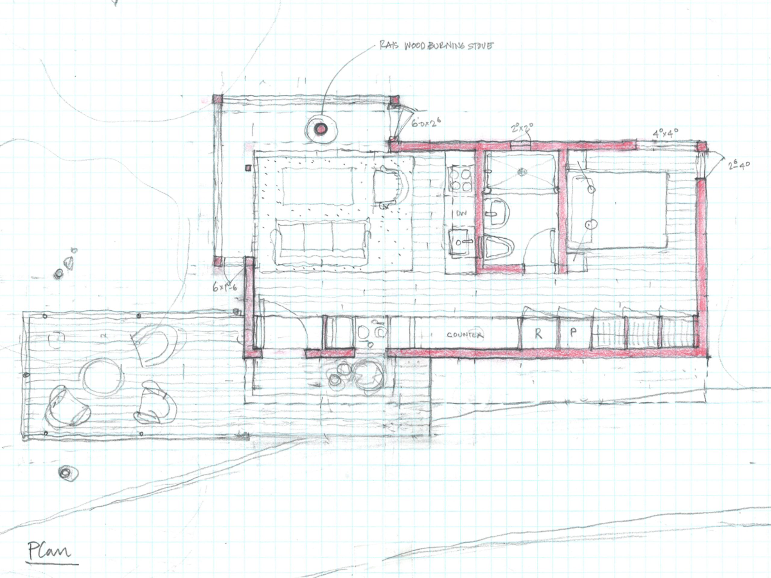
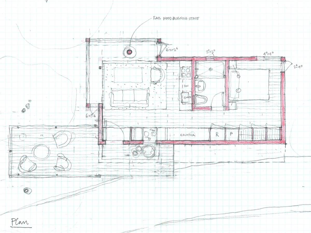
Our first professional client decided to downsize to the most modest accommodations possible, to camp out as it is on a bluff high over Lake Michigan. A trim volume was created, clad in metal for durability, sloped to collected water, opened/extended to the view. The interior is lined in wood, warm and ready to accept what time doles out.
We all need one of these.













